fbpx

Figtree Hill

£265,000
Sold STC

Figtree Hill

£265,000
Sold STC
2 Bedrooms
1 Bathrooms
1 Reception Rooms
Reference: 12810661
Leasehold

Property Summary

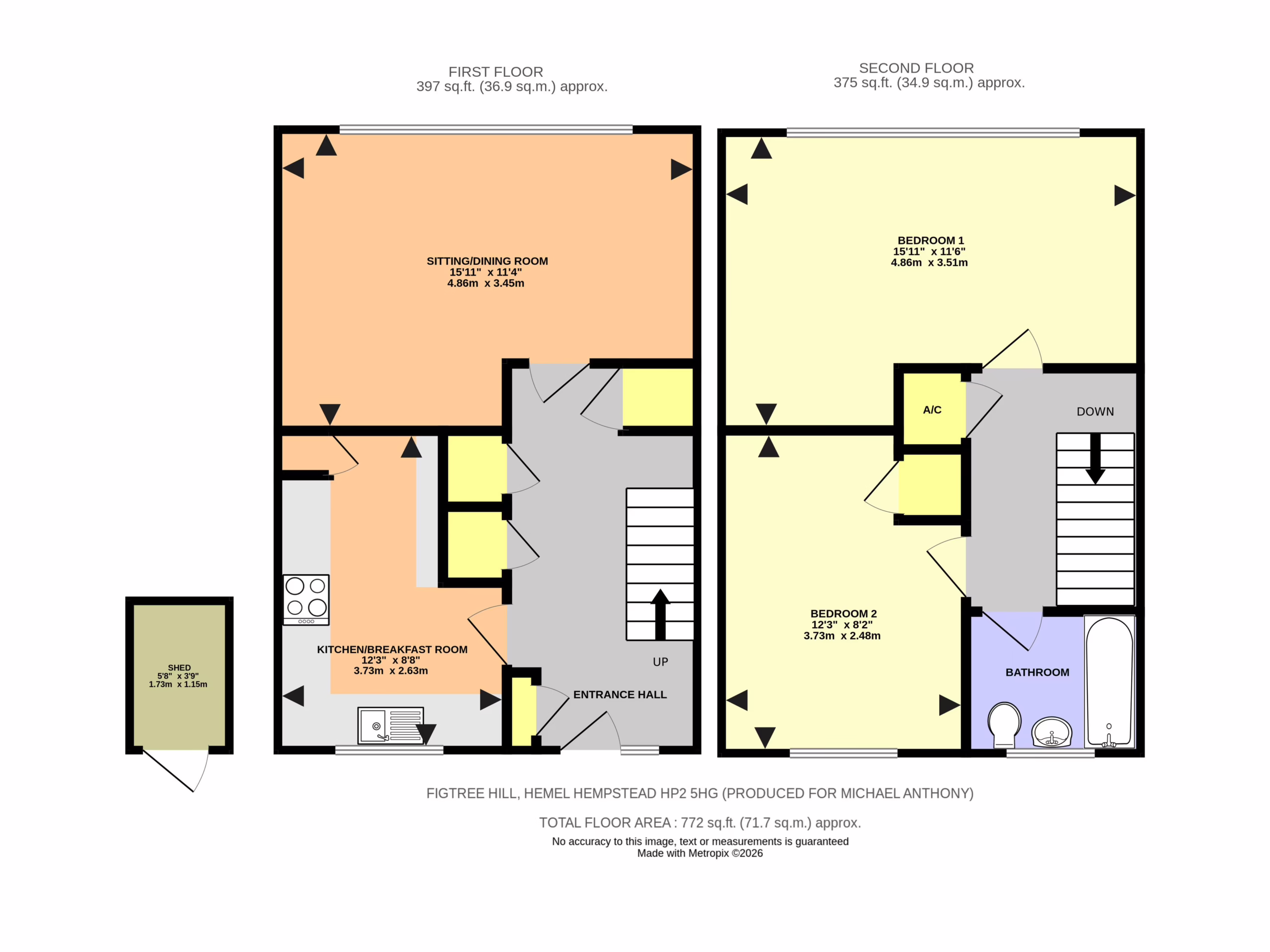
Set in the desirable Old Town, close to a host of local amenities including cafes, bars and restaurants, this wonderfully well proportioned two bedroom duplex maisonette comprises kitchen, lounge/dining room, family bathroom and two bedrooms. The development benefits from communal parking and the current owner is in the process of extending the lease.

Property Features

  • LONG LEASE
  • TWO BEDROOM DUPLEX MAISONETTE
  • POPULAR OLD TOWN LOCATION
  • LOUNGE/DINING ROOM
  • KITCHEN
  • FAMILY BATHROOM
  • CLOSE TO POPULAR AMENTIES
  • WALKING DISTANCE TO GADEBRIDGE PARK

Property Summary

Set in the desirable Old Town, close to a host of local amenities including cafes, bars and restaurants, this wonderfully well proportioned two bedroom duplex maisonette comprises kitchen, lounge/dining room, family bathroom and two bedrooms. The development benefits from communal parking and the current owner is in the process of extending the lease.

Full Details

ENTRANCE
Stairs to terrace, front door to:

ENTRANCE HALL
Doors to lounge/diner and kitchen, stairs rising to first floor, radiator, four built-in storage cupboards, spotlights.

LOUNGE/DINER
Double glazed window to rear aspect. Spotlights, radiator.

KITCHEN
Double glazed window to front aspect. Fitted with a range of wall-mounted and floor standing units with rolled edge work surface over, space for washing machine and dishwasher, integrated fridge freezer, integrated oven, electric hob with extractor over, radiator.

LANDING
Doors to bedrooms and bathroom.

BEDROOM ONE
Double glazed window to rear aspect. Radiator, spotlights.

BEDROOM TWO
Double glazed window to front aspect. Built-in storage cupboard, radiator, spotlights.

BATHROOM
Double glazed frosted window to front aspect. Panelled bath with shower over, wash hand basin with mixer tap, low level WC, gas radiator.

OUTSIDE
Communal parking area.

COUNCIL TAX BAND: B

EPC RATING: C

EPCs

​ ​
Michael Anthony Hemel Hempstead
33 Marlowes, Hemel Hempstead, HP1 1LA

See What Our Customers Think...

View Our Available Properties

For Sale
3
1
1
Freehold
£300,000 Offers Over
For Sale
3
1
1
Freehold
£325,000 Offers Over
For Sale
3
1
2

Make An Enquiry

Please complete the form below and a member of staff will be in touch shortly.

"*" indicates required fields