fbpx

Herbert Street, Hemel Hempstead

£375,000
For Sale

Herbert Street, Hemel Hempstead

£375,000
For Sale
2 Bedrooms
1 Bathrooms
1 Reception Rooms
Semi-Detached House
Reference: 12799423
Freehold

Property Summary

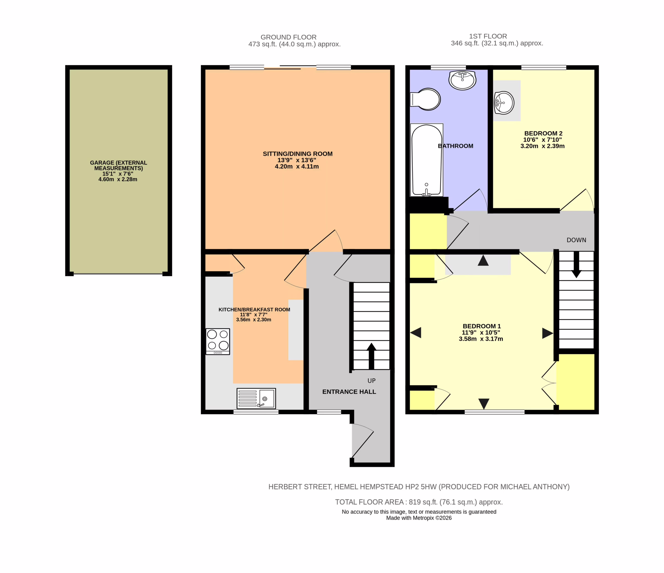
Located in the highly desirable Hemel Hempstead Old Town with a host of cafes, bars and shops, this two bedroom semi detached house offers well-balanced accommodation and is available with no upper chain. On the ground floor, the property comprises a kitchen and a spacious living/dining room leading out to the private rear garden. Upstairs, there are two bedrooms and a bathroom. Additionally, the property boasts a garage with parking.

Property Features

  • TWO BEDROOMS
  • NO CHAIN
  • HIGHLY SOUGHT AFTER LOCATION
  • GARAGE & PARKING
  • SPACIOUS LOUNGE/DINING ROOM
  • KITCHEN
  • PRIVATE REAR GARDEN
  • CLOSE TO A HOST OF POPULAR AMENITIES

Property Summary

Located in the highly desirable Hemel Hempstead Old Town with a host of cafes, bars and shops, this two bedroom semi detached house offers well-balanced accommodation and is available with no upper chain. On the ground floor, the property comprises a kitchen and a spacious living/dining room leading out to the private rear garden. Upstairs, there are two bedrooms and a bathroom. Additionally, the property boasts a garage with parking.

Full Details

Entrance Hall
Double glazed window to front, radiator, doors to kitchen and living room, stairs rising to first floor.

Kitchen
Double glazed window to front, radiator, range of floor and wall mounted units, wall mounted gas boiler, sink with drainer, space for washing machine, space for fridge, built in oven, gas hob with extractor fan over.

Lounge
Double glazed sliding door to rear, radiator.

Landing
Doors to bedrooms and bathroom, access to loft, storage cupboard housing hot water cyclinder.

Bedroom One
Double glazed window to front, radiator, built in wardrobes.

Bedroom Two
Double glazed window to rear, radiator, hand wash basin in vanity unit.

Bathroom
Frosted double glazed window to rear, radiator, WC, panel bath with shower over, pedestal hand wash basin in vanity unit, spotlights.

OUTSIDE

Rear Garden
Fully enclosed low maintenance private garden, storage shed, rear access gate.

Garage & Parking
Garage with up and over door, parking in front for one car.

COUNCIL TAX BAND: D

EPC RATING: C

EPCs

​ ​
Michael Anthony Hemel Hempstead
33 Marlowes, Hemel Hempstead, HP1 1LA

See What Our Customers Think...

View Our Available Properties

For Sale
3
1
2
For Sale
2
1
1
Freehold
£450,000
For Sale
3
2
2
Freehold
£515,000

Make An Enquiry

Please complete the form below and a member of staff will be in touch shortly.

"*" indicates required fields