fbpx

Browns Hedge, Pitstone

£415,000
Sold STC

Browns Hedge, Pitstone

£415,000
Sold STC
3 Bedrooms
1 Bathrooms
1 Reception Rooms
Semi-Detached House
Reference: 9914842
Freehold

Property Summary

A three bedroom semi-detached family home which has been beautifully maintained throughout and is ideally situated on the ever popular Castlemead development in Pitstone. Benefits include a generous refitted kitchen/dining room, driveway parking for two cars with garage and additional parking to the rear of the property.

Property Features

  • BEAUTIFULLY MAINTAINED
  • THREE BEDROOMS
  • REFITTED KITCHEN/DINING ROOM
  • REFITTED BATHROOM
  • DRIVEWAY PARKING FOR TWO CARS
  • GARAGE AND ADDITIONAL PARKING
  • LOW MAINTENANCE REAR GARDEN

Property Summary

A three bedroom semi-detached family home which has been beautifully maintained throughout and is ideally situated on the ever popular Castlemead development in Pitstone. Benefits include a generous refitted kitchen/dining room, driveway parking for two cars with garage and additional parking to the rear of the property.

Full Details

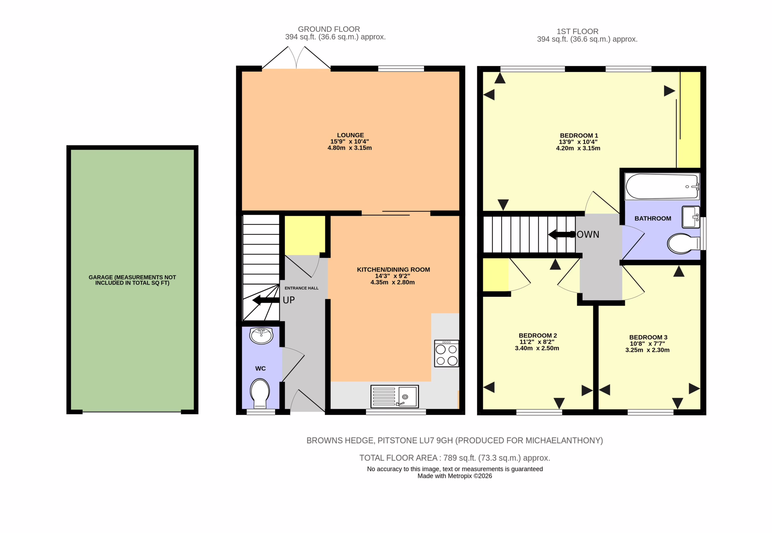
ENTRANCE
Double glazed door to:

ENTRANCE HALL
Radiator, stairs to first floor with storage cupboard below with power and light.

CLOAKROOM
Double glazed window. Low level w.c. wash hand basin, heated towel rail, recessed spotlighting.

LOUNGE
Double glazed double doors and windows to rear. Radiator, coving to ceiling.

KITCHEN/DINING ROOM
Double glazed window to front. Fitted with a range of both floor and wall mounted units with wooden work surface over, single drainer stainless steel sink unit with mixer tap, built in oven and hob with extractor fan over, plumbing for automatic washing machine and dishwasher, space for fridge freezer, recessed spotlighting, radiator.

LANDING
Access to loft space housing gas boiler.

BEDROOM ONE
Two double glazed windows to rear. Radiator, built in wardrobe, recessed spotlighting.

BEDROOM TWO
Double glazed window to front. Radiator, built in cupboard, recessed spotlighting.

BEDROOM THREE
Double glazed window to front. Radiator.

BATHROOM
Double glazed frosted window. White suite comprising panelled bath with shower unit over, pedestal wash hand basin, low level w.c. tiled floor, part tiled walls, heated towel rail.

OUTSIDE

GARAGE
In block behind. Up and over door, further parking to the front.

FRONT GARDEN
Block paved driveway providing hardstanding for two further cars.

REAR GARDEN
Mainly laid to artificial grass with paved patio areas, all enclosed by walling and fencing, gated rear access.

EPCs

​ ​
Michael Anthony Tring
79 High Street, Tring, HP23 4AB

See What Our Customers Think...

View Our Available Properties

For Sale
3
1
1
For Sale
2
1
1
For Sale
5
1
1
Freehold
£450,000

Make An Enquiry

Please complete the form below and a member of staff will be in touch shortly.

"*" indicates required fields